Verteilerschrank L-Beton Swiss 700 800 x 737 x 150 mm / Innen 125 mm
BKK Verteilerkasten

Bitte melden Sie sich an um den Warenkorb nutzen zu können und anschliessend Bestellungen abschliessen zu können.

Anmelden
Artikel-Nr:3004535

Beschreibung

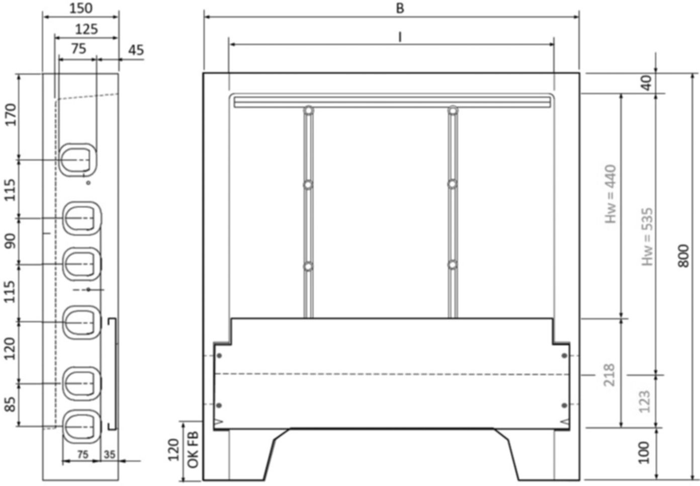
- Einbauschrank aus Leichtbeton für Heizungs- und Sanitärverteiler zur Unterputzmontage
- 2 vormontierte C-Profilschiene zur Befestigung der Verteiler
- Variable Wartungsöffnung wahlweise mit Höhe 440mm resp. 535mm
- Beidseitig vorbereitete Aussparungen zur einfachen Durchführung der Leitungen
- Die Lage der seitlichen Aussparungen lässt 2 unterschiedliche Verteiler-Positionen zu
- Demontierbare Frontblende aus verzinktem Stahlblech mit Quarzsandbeschichtung
- Kasten aus Leichtbeton, zum direkten Einbetonieren (gemäss Anleitung)
- Brandschutzklasse A1, nicht brennbar, minimale Flächenlast 2000 kg
- Luftschalldämmung EN ISO 140-3, Rw = 45 dB (von der EMPA geprüft)
*Auf Anfrage, kein Lagerartikel

Flächenlast 3000 kg
Luftschalldämmung RW = 45 dB

Spezifikationen

Nennbreite (mm)
700
B (mm)
737
l (mm)
635
Gewicht
33 kg / STK

Zuletzt besuchte Artikel

Um Ihnen in unserem eShop den bestmöglichen Service zu gewährleisten verwenden wir Cookies. Erfahren Sie mehr über die Cookie-Nutzung