Duschrinnen CeraWall Individual 1300mm 5-535597 Einbau an Wand, zum verdeckten Einbau
SCHACO Entwässerungstechnik

Bitte melden Sie sich an um den Warenkorb nutzen zu können und anschliessend Bestellungen abschliessen zu können.

Anmelden
Artikel-Nr:4003244

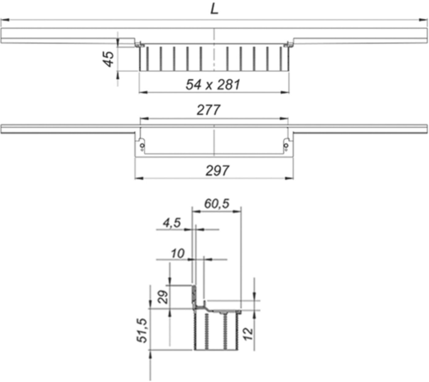
Beschreibung

- Zum Einbau an der Wand mit Ablaufgehäuse CeraWall, CeraWall Plan, DallFlex, DallFlex Plan
- Duschrinne mit integriertem Quergefälle, zum verdeckten Einbau am Übergang Wand / Boden
- Geeignet für Wand- und Bodenbeläge von 10 - 18 mm (ohne Kleberbett)
- Selbstklebendem Sicherheitsband S 3 mit Schnittschutzarmierung aus Edelstahl
- Inkl. Montagezubehör, Positionierhilfen und Bauschutzabdeckung
- Material: Edelstahl 1.4301

Spezifikationen

Länge (mm)
1300
Ablaufleistung (l / s)
0.5 - 1.0
Gewicht
2.7 kg / STK

Zuletzt besuchte Artikel

Um Ihnen in unserem eShop den bestmöglichen Service zu gewährleisten verwenden wir Cookies. Erfahren Sie mehr über die Cookie-Nutzung